довгостроково
Без % Оренда представницький офісу 170 м2, БЦ Сапфір
Київ, Печерский, Хрестовий, 2А • На мапі3 060 USD/на місяць
0% комісіяПлоща170 м²
Поверх10 з 10
Без % Оренда представницький офісу 170 м2, БЦ Сапфір
Без комісії! Здам офіс 170 м2, пров. Хрестовий 2., метро Арсенальна
Оренда офісів в Печерському р-ні, центр Києва, Арсенальна
БЦ Сапфір, доступ 7/24, 10 поверх
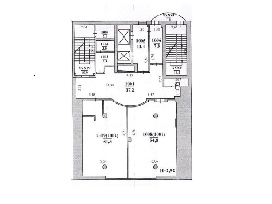
Представницький офіс 170 м, 2
2 кабінети, хол, власна кухня, санвузол
Єксклюзивний дизайн, дорогі меблі
м. Арсенальна, 5 хвилин пішки
Здається юр. особа без Пдв, Орендна ставка 18 $ /м2.
Ціна 3 060 $ Без комісії! Прямий договір оренди
Детальна інформація за тел Юрій Новіков
ПоложенняБізнес центр
Тип об'єктуОфіс
Фасадний вхідТак
Назва бізнес-центруСапфір
Id оголошення792744












































