довгостроково
Без Комісії! Оренда офісу 80 м, вул. Березняківська 29
Київ, Дніпровський, Березняковская 29 • На мапі20 000 ГРН/на місяць
0% комісіяПлоща80 м²
Поверх5 з 5
Без % Здам офіс, оренда 80 м2, вул. Березняківська 29
Оренда офісу в Дніпровському районі, Березняки
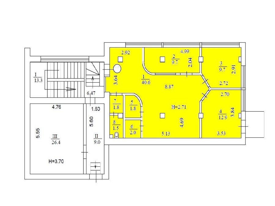
Офісний центр, площа 80 кв. м, 3 кабінети
Окремий блок, місце під кухню, свій с/в, кондиціонери
Офісний ремонт, комп'ютерна розводка по кабінетах
Охоронна та пожежна сигналізація, пропускна система
Розвинена інфраструктура, магазини, супермаркет
Відмінна транспортна розв'язка, м. Осокорки, м. Лівобережна
Ціна за 1 кв. м 250 грн/м2 + комунальні. Здає юр. особа з Пдв
Прямий договір оренди від власника
Вартість оренди 20 000 грн. Відділ оренди Юрій Новіков
P. S. Інші варіанти по Лівому Берегу
ПоложенняБізнес центр
Тип об'єктуОфіс
Фасадний вхідНі
Id оголошення797650






























